Store Imagina > Productos > Cocina Cerrada > Alto Lima Park Dpto. 1401-A

Alto Lima Park Dpto. 1401-A

Av. Oscar R. Benavides 1106 | Ver mapa

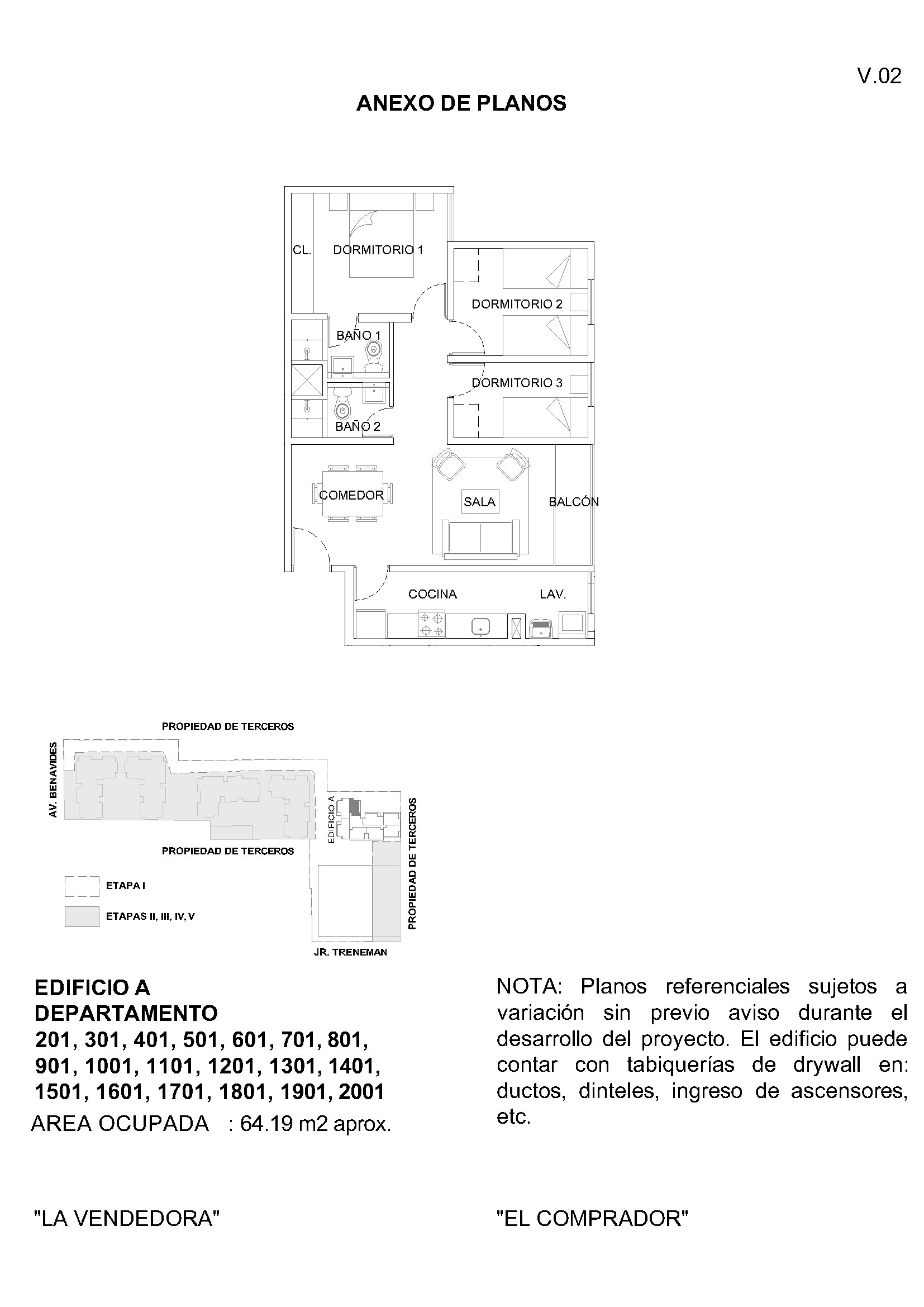
3 Dormitorios, 2 Baños

Área total aprox: 64.19 m2 aprox.

Etapa: Entrega Inmediata

Entrega estimada: Abril, 2025

NORMAL S/366,600.00

ONLINE S/311,610.00

SEPARAR S/1,000.00

SEPARAR

  • Área Total aprox.: 64.19 m2
  • Vista: Interna
  • Dormitorios: 3 Dormitorios
  • Baños: 2 Baños

  • Gimnasio
  • Delivery room
  • Juegos para niños
  • Pet zone
  • Sala de adultos
  • Sala de cine
  • Sala de niños
  • Zona de lavado
  • Zona de parrillas

DESCRIPCIÓN

Conoce Alto Lima Park un proyecto creado para que puedas encontrar los espacios que siempre imaginaste en un entorno residencial, céntrico en auge y desarrollo.

Este proyecto consta de edificios de 20 pisos con departamentos de 2 y 3 dormitorios decorados bajo las últimas tendencias de diseño, acabados de gran calidad  y una amplia selección de áreas comunes inigualables para cada miembro de la familia.

Imagina, el lugar donde mereces vivir.